空き部屋のある団地の入居申し込みは随時受け付けております。実際の空き状況については、市営住宅窓口または電話でお問い合わせください。
- 各団地の情報は市営住宅・市営単独住宅について(団地案内)をご参照ください。
- 空きのない団地の入居申し込みは現在受け付けておりません。
空き状況(令和8年2月17日時点)
リンクはすべてページ内リンクです。
| No. | 団地名 | 空き戸数 | 単身入居 |
|---|---|---|---|
| 1 | 前田 | 1 | 不可 |
| 2 | 老神 | 2 | 不可 |
| 3 | 与内山 | 4 | 不可 |
| 4 | 鶴田 | 4 | 不可 |
| 5 | 立野 | 2 | 不可 |
| 6 | 一本杉 | 1 | 不可 |
| 7 | 1 | 単身専用 | |
| 8 | 桜木 | 3 | 不可 |
| 9 | 1 | 単身専用 | |
| 10 | 原田 | 3 | 不可 |
| 11 | 1 | 単身専用 | |
| 12 | 中原 | 7 | 不可 |
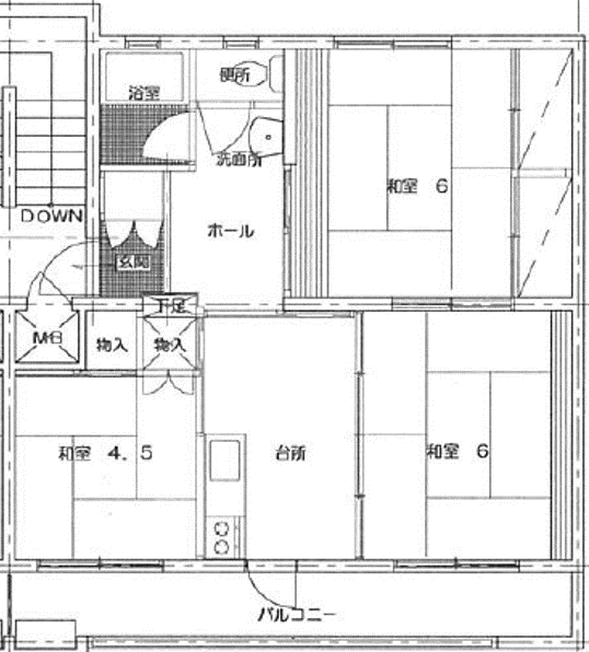
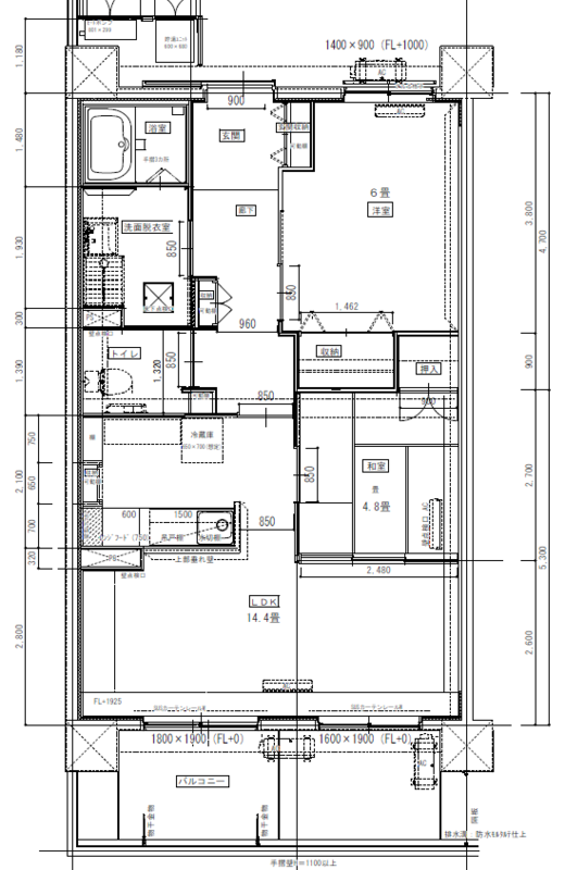
各団地の詳細
1.前田団地
※参考写真です。実際の空き部屋とは異なる場合があります。お部屋の状態等については、入居前の内見の際にご確認ください。
※間取りについては、実際の空き部屋とは向き等が異なる場合があります。
2.老神団地
※参考写真です。実際の空き部屋とは異なる場合があります。お部屋の状態等については、入居前の内見の際にご確認ください。
3.与内山団地
※参考写真です。実際の空き部屋とは異なる場合があります。お部屋の状態等については、入居前の内見の際にご確認ください。
※間取りについては、実際の空き部屋とは向き等が異なる場合があります。
4.鶴田団地
※参考写真です。実際の空き部屋とは異なる場合があります。お部屋の状態等については、入居前の内見の際にご確認ください。
※間取りについては、実際の空き部屋とは向き等が異なる場合があります。
5.立野団地
※参考写真です。実際の空き部屋とは異なる場合があります。お部屋の状態等については、入居前の内見の際にご確認ください。
6.一本杉団地
※参考写真です。実際の空き部屋とは異なる場合があります。お部屋の状態等については、入居前の内見の際にご確認ください。
7.一本杉団地(単身専用)
※参考写真です。実際の空き部屋とは異なる場合があります。お部屋の状態等については、入居前の内見の際にご確認ください。
8.桜木団地
※参考写真です。実際の空き部屋とは異なる場合があります。お部屋の状態等については、入居前の内見の際にご確認ください。
※間取りについては、実際の空き部屋とは向き等が異なる場合があります。
9.桜木団地(単身専用)
※参考写真です。実際の空き部屋とは異なる場合があります。お部屋の状態等については、入居前の内見の際にご確認ください。
※間取りについては、実際の空き部屋とは向き等が異なる場合があります。
10.原田団地
※参考写真です。実際の空き部屋とは異なる場合があります。お部屋の状態等については、入居前の内見の際にご確認ください。
11.原田団地(単身専用)
※参考写真です。実際の空き部屋とは異なる場合があります。お部屋の状態等については、入居前の内見の際にご確認ください。
12.中原団地
※参考写真です。実際の空き部屋とは異なる場合があります。お部屋の状態等については、入居前の内見の際にご確認ください。
※間取りについては、実際の空き部屋とは向き等が異なる場合があります。
